печать

Коттедж Истад

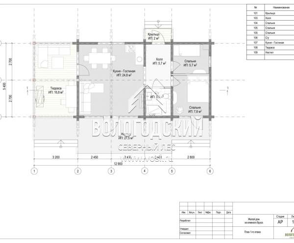
Габариты
12,9х5,4
Материал стен:
Диаметр бревна:
Жилая площадь
94.00 м2
Объем:
м3
Предварительная стоимость:
q

Мы против!

«подводных камней» и дополнительных затрат наших заказчиков в процессе строительства, поэтому учитываем все необходимые детали в первоначальном расчете.

Планировка

Готовый объект

Преимущества компании

узнать все о преимуществах компании

Бесплатная консультация
по вопросам, связанным со строительством деревянных домов, по телефону горячей линии

Преимущества компании

В стоимость входит расширенная комплектация работ, которая включает домокомплект со всеми необходимыми материалами и деталями для сборки, а так же вспомогательными конструкциями

Мы сами
являемся заготовителями леса, поэтому гарантируем лучшую цену на древесину

Круглогодичное строительство из качественного северного леса зимней заготовки, благодаря хранению в надлежащих условиях на производственной базе

Штатные бригады во главе с бригадиром, контролирующим ход строительства на каждом объекте

Вы можете ознакомиться с сотнями отзывов клиентов, которым мы уже построили дома и бани

Возьмем на себя все вопросы
по доставке и разгрузке сруба, в том числе на участке без подъездных путей

Бесплатная консультация
по вопросам, связанным со строительством деревянных домов, по телефону горячей линии